jeudi 17 mai 2012

Club house Moscow (Russia)


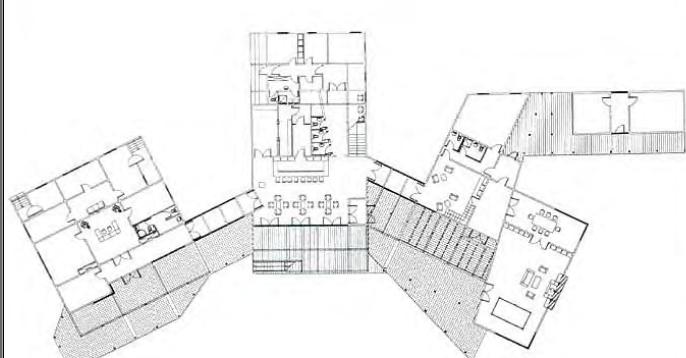
The complex 
belongs to a 
shooting range 
and is located 

next to a sand dune. 
It includes offices for personnel, technical services for the shooting 
range, public areas, shops and a restaurant. 
Three blocks are brought together on one side by an open terrace.







Aucun commentaire:

Enregistrer un commentaire